Ölrettich

Details

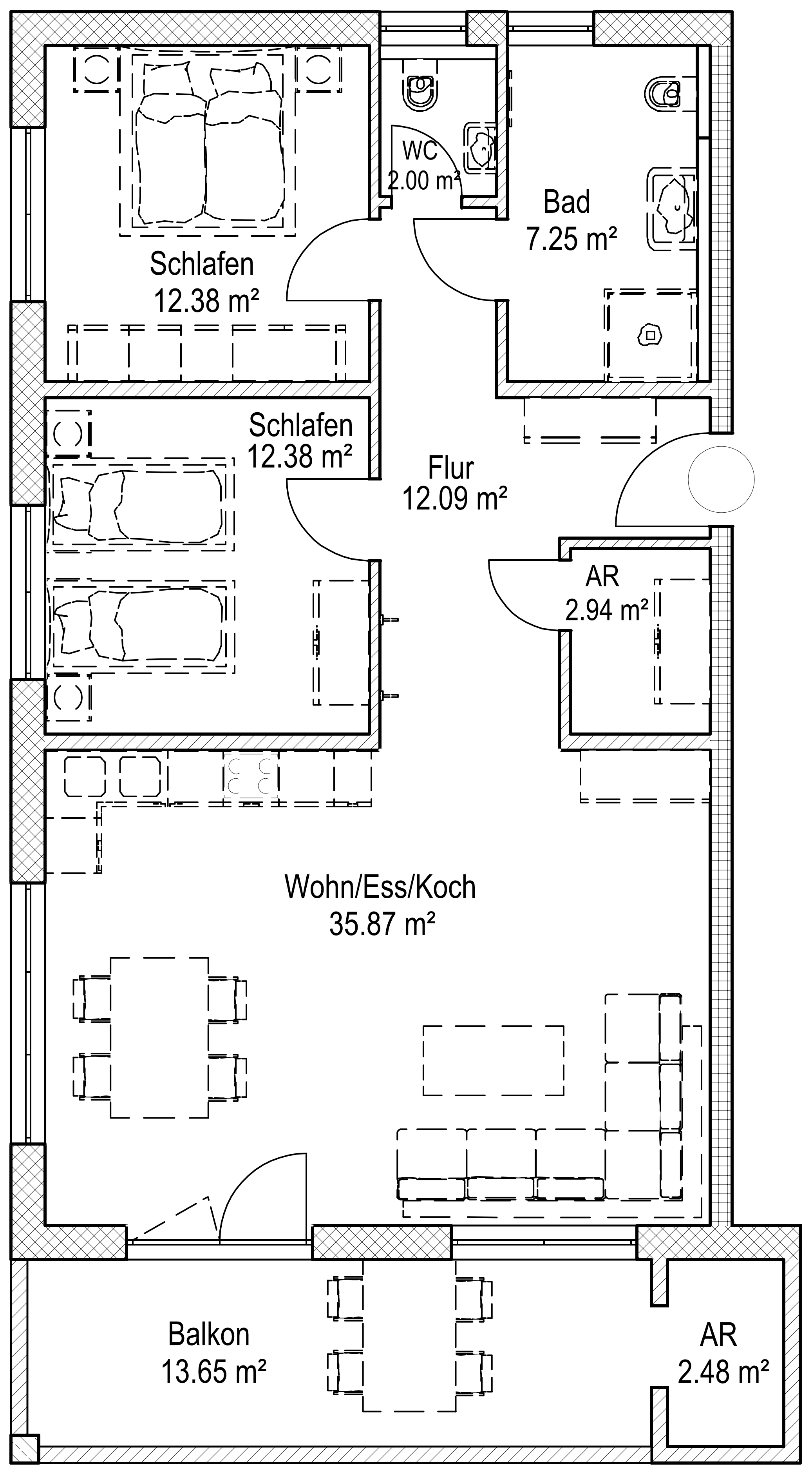
Die modern eingerichtete 3-Zimmer-Wohnung mit 95m² besteht aus Küche, Ess- und Wohnzimmer, Bad, zwei Schlafzimmern, WC, Abstellraum und Balkon.
Sie verfügt über Smart Home und Internet mit hoher Geschwindigkeit. Die Wohnung befindet sich im Obergeschoss unseres im Jahr 2024 fertiggestellten Ferienhauses.

Die voll ausgestattete Küche im Ess- und Wohnbereich umfasst alle wichtigen Utensilien sowie Kochfeld, Backofen, Kühlschrank mit Gefrierfach, Spülmaschine, Wasserkocher, Toaster und eine Kapsel-Kaffeemaschine (Nespresso Vertuo).
Im Ess- und Wohnbereich befinden sich ein Esstisch, eine großzügige Eckcouch, ein Smart-TV sowie ein Smart-Radio.

Über die Balkontür im Wohnbereich gelangen Sie auf den großzügigen Balkon mit Balkonmöbeln und Markise.

Das erste Schlafzimmer ist mit einem Doppelbett (180cm x 200cm) und einem gegenüberliegenden großen Kleiderschrank mit Spiegeltüren ausgestattet.

Das zweite Schlafzimmer ist mit zwei Einzelbetten (90cm x 200cm) mit gegenüberliegendem Kleiderschrank ausgestattet.

Das moderne Badezimmer mit Außenfenstern verfügt über eine bodengleiche Dusche, eine Toilette und einen beleuchteten Spiegel.

Das separate WC enthält eine Toilette und ein kleines Waschbecken.

Im Abstellraum stehen ein Staubsauger und ein Wäscheständer zur Verfügung.

Die Temperaturen innerhalb der Wohnung lassen sich individuell regeln.
Unser verbautes Smart-Home-System ermöglicht neben den klassischen Schaltern auch die zentrale Steuerung der Lichter, Temperaturen und Jalousien der Wohnung über ein Bedienpanel, welches sich im Flur befindet.

Es besteht die Möglichkeit für Self-Check-In und Self-Check-Out.

Wir freuen uns auf Ihren Besuch!

Diese Website befindet sich im Aufbau.

Vielen Dank für Ihr Interesse. Unsere Website befindet sich aktuell noch im Aufbau. Bitte beachten Sie, dass vorübergehende Platzhaltertexte oder unvollständige Inhalte erscheinen können.
Dennoch können Sie sich gerne bereits auf der Website umsehen und Eindrücke von unserem Ferienhaus erhalten.
Das Formular für Buchungsanfragen ist ebenfalls bereits funktionsfähig – wir freuen uns auf Ihre Nachricht.